Kontakt
-
Impressum
Startseite
Aussenansichten
Gartenansicht (Nord) 1
Gartenansicht (Nord) 2
Schwimmteich 1
Schwimmteich 2
Innenansichten
Wohnzimmer
Arbeitszimmer
Wellnessbereich
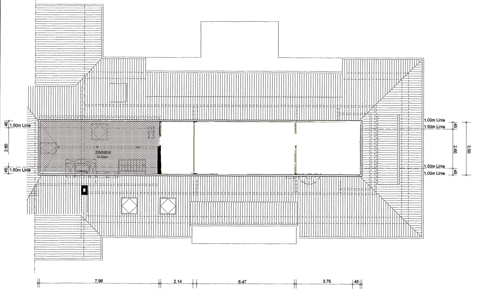
Grundrisse
Keller
Erdgeschoss
1. Obergeschoss
2. Obergeschoss
Exposé
Eindrucksvolle Landhaus-Villa aus den 30ern in Gevelsberg
- Legende -
Grundriss: 2. Obergeschoss (zum Vergrößern bitte anklicken)